Back to Search results

39 Esker Lawns, Lucan, Lucan, County Dublin , K78 K6R9

Guide price €595,000
  • Bedrooms 3
  • Bathrooms 2
  • Size 1,361 ft²
  • Ber Rating
Read More

Description

McDonald Property, Lucan’s Longest Established Auctioneers, Valuers & Estate Agents, are delighted to present 39 Esker Lawns to the market.

This bright, spacious, and exceptionally well-presented three-bedroom family home enjoys a prime position in a quiet, mature residential area within walking distance of all amenities in Lucan Village.

The property offers an impressive range of features including a charming private rear garden with mature trees, generous internal living space, large driveway, two bathrooms, a utility room, and a modern kitchen. This well-maintained home is ideal for families seeking convenience to local schools, shops, parks, and public transport, while benefiting from easy access to the N4, M50 and Dublin City Centre.

Key Features

Spacious internal accommodation extending to approx.1,360 sq ft

Large, private rear garden featuring mature native trees and landscaping

Utility room with independent access from both the front and rear

Attic suitable for conversion (previous permission granted but expired)

Within short walking distance to Lucan Village and all local amenities

Bus services to the City Centre within minutes’ walk

Several parks and amenity greens located nearby

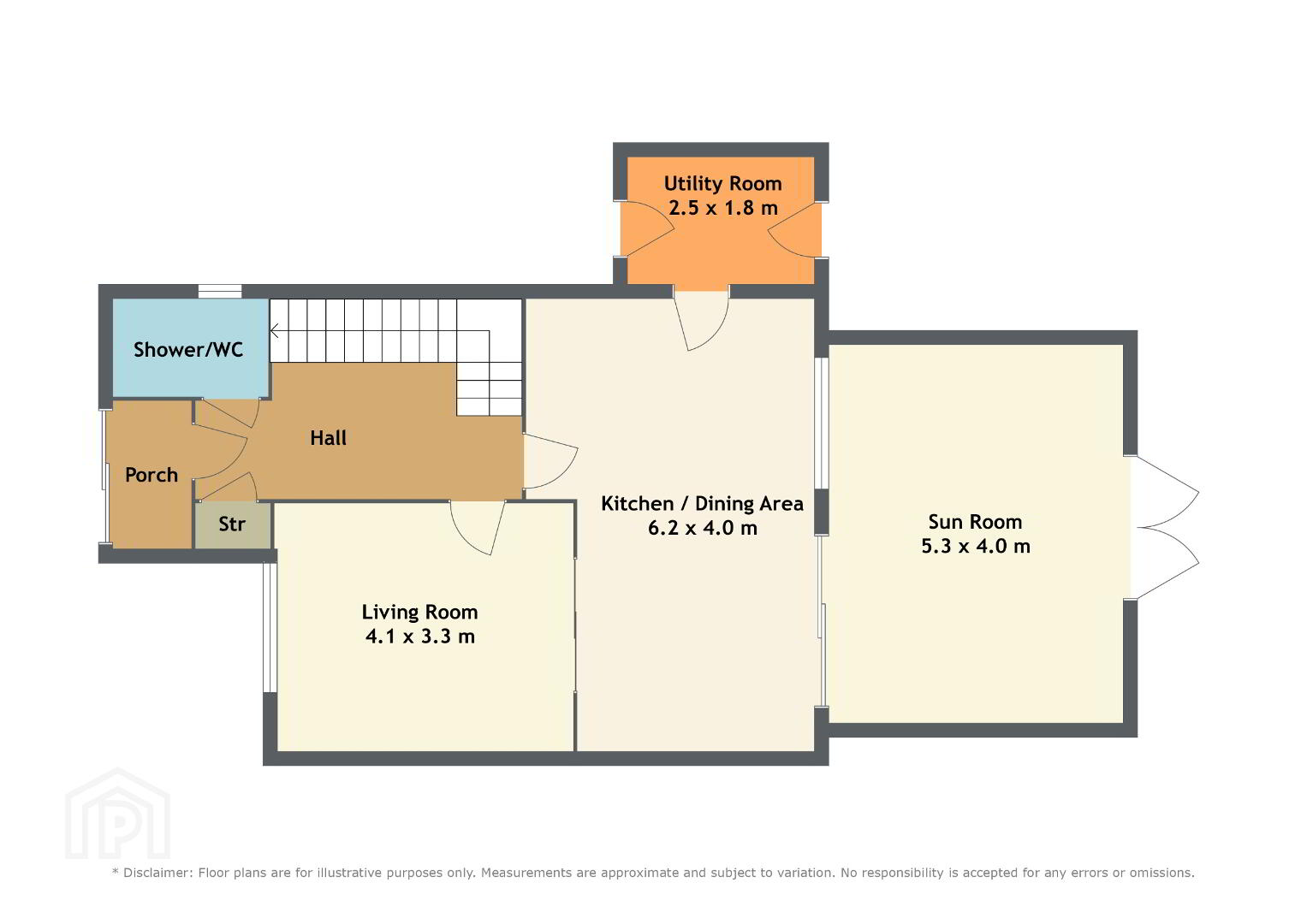
ACCOMMODATION:

Downstairs

Entrance Porch: with laminate flooring, recessed spotlights, quality glass panelled door

Entrance Hall: with laminate flooring,  cloak room, clever soft-closing under-stairs storage, radiator cover

Guest Bathroom: WC, WHB, window to side, tiled floor and walls, recessed spotlights, shower unit, wall-mounted radiator heater

Living Room: to front of house, with laminate flooring, ceiling coving, recessed spotlights, curtains, wall-to-wall custom-built bookcases with concealed glass-panelled sliding doors, open hearth fireplace with tiled inset and mahogany surround

Kitchen / Dining Room: with extensive range of white kitchen units at floor and eye-level, composite countertops with upstand, Whirlpool induction hob and extractor, integrated Whirlpool double oven, Hotpoint dishwasher, recessed spotlights, ceiling coving

Sun Room / Family Room: with laminate flooring, skylights, French doors to rear garden

Utility Room: Access to both front and rear gardens, tiled floor, fitted units, sink, plumbed for washing machine

UPSTAIRS

Master Bedroom: Front aspect, fitted wardrobes, carpet, blinds

Bedroom 2: Rear aspect, original wooden flooring, curtains

Bedroom 3: Rear aspect, original wooden flooring, curtains

Family Bathroom: Fully tiled, WC, WHB, bath

OUTSIDE:

The large, exceptionally private rear garden is not overlooked and is set out over two levels. The upper-level features raised composite decking with fencing and steps leading to the lower garden, arranged with gravel and bark areas and incorporating a children’s treehouse. Mature native trees provide natural privacy and a tranquil setting.


An extra-large shed is included in the sale. Side access provided.

Front Side Entrance: Covered side entrance with gate.

Measurements provided are approximate and intended for guidance. Descriptions, photographs and floor plans are provided for illustrative and guidance purposes. Errors, omissions, inaccuracies, or mis-descriptions in these materials do not entitle any party to claims, actions, or compensation against McDonald Property or the vendor. Prospective buyers or interested parties are responsible for conducting their own due diligence, inspections, or other inquiries to verify the accuracy of the information provided. McDonald Property have not tested any appliances, apparatus, fixtures, fittings, or services. Prospective buyers or interested parties must undertake their own investigation into the working order of these items.

BER details

BER Rating:

BER No.: 102555240

Energy Performance Indicator: 183 kWh/m²/yr

PSRA Licence No: 001877

Get in touch

Use the form below to get in touch with McDonald Property or call them on (01) 628 0625

Please check you have entered all details correctly: